3 Bedroom
2 Bathroom
Fireplace
Air Exchanger
Baseboard Heaters, Wall Mounted Heat Pump
$890,000
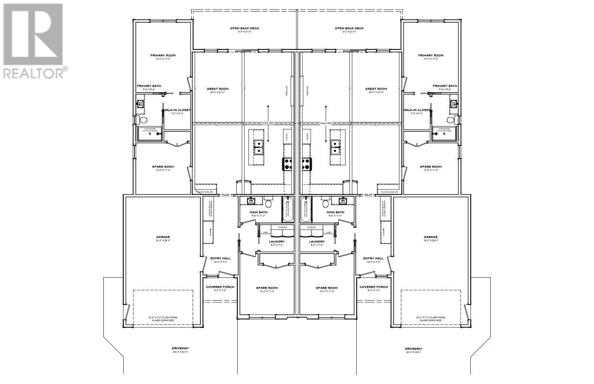
Modern style duplex located on a dead-end street just steps from the waterfront and close to all Summerside amenities. This property offers many features not commonly found in other duplex developments and includes modern finishes throughout. Each unit offers 1,450 square feet of finished living space with a 1.5 car garage, 3 bedrooms, and 2 full bathrooms. The primary bedroom includes a walk-in closet and an ensuite with a custom tiled shower. The large entryway features built-in lockers and tile flooring. Tile flooring is also featured in all bathrooms, with water-resistant laminate flooring throughout the remainder of the home. The main living area offers vaulted ceilings with wood beams, large patio doors with access to the back deck, an electric fireplace media wall, and an open concept kitchen, living, and dining layout. The kitchen will include a 7-foot wood-tone island to match the ceiling beams, pewter-colored cabinetry, black hardware, tile backsplash, and all new appliances. Front and rear pressure-treated decks are included. Construction features include an ICF foundation, roof shingles, vinyl siding, 200 amp electrical service, all electric heat plus one heat pump per unit, and a double-wide paved driveway. Exterior colors will be Sand and Linen with black windows and doors, and the garage door will feature windows. Each unit is situated on approximately 0.11 acres. Estimated completion is March 2026. (id:30476)
Property Details
|
MLS® Number
|
202529236 |
|
Property Type
|
Single Family |
|
Community Name
|
Summerside |
|
Amenities Near By
|
Golf Course, Park, Playground, Public Transit, Shopping |
|
Community Features
|
Recreational Facilities, School Bus |
|
Features
|
Paved Driveway, Level |
|
Structure
|
Deck |
Building
|
Bathroom Total
|
2 |
|
Bedrooms Above Ground
|
3 |
|
Bedrooms Total
|
3 |
|
Appliances
|
Range, Stove, Dishwasher, Dryer, Washer, Refrigerator |
|
Basement Type
|
None |
|
Constructed Date
|
2025 |
|
Cooling Type
|
Air Exchanger |
|
Exterior Finish
|
Vinyl |
|
Fireplace Present
|
Yes |
|
Flooring Type
|
Laminate, Tile |
|
Heating Fuel
|
Electric |
|
Heating Type
|
Baseboard Heaters, Wall Mounted Heat Pump |
|
Total Finished Area
|
2900 Sqft |
|
Type
|
Duplex |
|
Utility Water
|
Municipal Water |
Parking
|
Attached Garage
|
|
|
Heated Garage
|
|
Land
|
Access Type
|
Year-round Access |
|
Acreage
|
No |
|
Land Amenities
|
Golf Course, Park, Playground, Public Transit, Shopping |
|
Land Disposition
|
Cleared |
|
Sewer
|
Municipal Sewage System |
|
Size Irregular
|
0.22 |
|
Size Total
|
0.2200|under 1/2 Acre |
|
Size Total Text
|
0.2200|under 1/2 Acre |
Rooms
| Level |
Type |
Length |
Width |
Dimensions |
|
Main Level |
Primary Bedroom |
|
|
14 x 11 |
|
Main Level |
Ensuite (# Pieces 2-6) |
|
|
9.6 x 5.6 |
|
Main Level |
Other |
|
|
7 x 8 |
|
Main Level |
Bedroom |
|
|
10.6 x 11 |
|
Main Level |
Great Room |
|
|
29 x 21 |
|
Main Level |
Kitchen |
|
|
Combined |
|
Main Level |
Dining Room |
|
|
Combined |
|
Main Level |
Bath (# Pieces 1-6) |
|
|
5.6 x 11 |
|
Main Level |
Laundry Room |
|
|
5.6 x 7 |
|
Main Level |
Bedroom |
|
|
10 x 11 |
|
Main Level |
Other |
|
|
Entry 16 x 7 |
|
Main Level |
Primary Bedroom |
|
|
14 x 11 |
|
Main Level |
Ensuite (# Pieces 2-6) |
|
|
9.6 x 5.6 |
|
Main Level |
Other |
|
|
7 x 8 |
|
Main Level |
Bedroom |
|
|
10.6 x 11 |
|
Main Level |
Great Room |
|
|
29 x 21 |
|
Main Level |
Kitchen |
|
|
Combined |
|
Main Level |
Dining Room |
|
|
Combined |
|
Main Level |
Bath (# Pieces 1-6) |
|
|
5.6 x 11 |
|
Main Level |
Laundry Room |
|
|
5.6 x 7 |
|
Main Level |
Bedroom |
|
|
10 x 11 |
|
Main Level |
Other |
|
|
Entry 16 x 7 |
https://www.realtor.ca/real-estate/29174742/43-45-glover-shore-road-summerside-summerside