8 Lily Lane Victoria Cross, Prince Edward Island C0A 1W0

3 Bedroom 2 Bathroom
Character Baseboard Heaters, Wall Mounted Heat Pump

$400,000

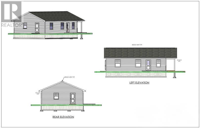
Welcome to Lily Lane in Victoria Cross, PEI. This brand new modern bungalow is nearing completion in one of the area's newest and most appealing subdivisions. Offering 3 bedrooms and 1.5 bathrooms, this 1,120 sq. ft. home delivers bright, efficient, and thoughtfully designed living space. The 28 x 40 layout sits on a solid concrete slab and showcases high end finishes throughout, including a durable metal roof, luxury vinyl plank flooring, and heat pumps for comfortable year round climate control. Every detail was selected with durability and low maintenance living in mind. This home sits on a generous 0.8 acre lot and provides ample outdoor space while remaining less than five minutes from the full service town of Montague. Shops, schools, restaurants, and essential amenities are all nearby, offering a blend of convenience and quiet country living. This home will be ready to move in by January 2026 and will be fully completed for year round use. The price includes HST. Floor plans may be subject to minor adjustments, and all measurements are approximate and should be verified by the purchaser. (id:30476)

Property Details

MLS® Number 202528328
Property Type Single Family
Community Name Victoria Cross
Amenities Near By Golf Course, Park, Playground, Public Transit, Shopping
Community Features Recreational Facilities, School Bus
Features Level
Structure Deck

Building

Bathroom Total 2
Bedrooms Above Ground 3
Bedrooms Total 3
Appliances Oven, Dishwasher, Dryer, Washer, Refrigerator
Architectural Style Character
Basement Type None
Constructed Date 2025
Construction Style Attachment Detached
Exterior Finish Vinyl
Flooring Type Vinyl
Foundation Type Poured Concrete, Concrete Slab
Half Bath Total 1
Heating Fuel Electric
Heating Type Baseboard Heaters, Wall Mounted Heat Pump
Total Finished Area 1120 Sqft
Type House
Utility Water Drilled Well

Land

Access Type Year-round Access
Acreage No
Land Amenities Golf Course, Park, Playground, Public Transit, Shopping
Sewer Septic System
Size Irregular 0.8
Size Total 0.8000|1/2 - 1 Acre
Size Total Text 0.8000|1/2 - 1 Acre

Rooms

Level Type Dimensions
Main Level Kitchen 13.9 X 28.
Main Level Living Room 13.9 X 28.
Main Level Bedroom 6.10 X 10.8
Main Level Bedroom 9.3 X 10.8
Main Level Primary Bedroom 13. X 11.9
Main Level Utility Room 12.8 X 5.4
Main Level Bath (# Pieces 1-6) 10.8 X 5.2
Main Level Bath (# Pieces 1-6) 5.10 X 8.8

https://www.realtor.ca/real-estate/29123731/8-lily-lane-victoria-cross-victoria-cross

Contact Us

Contact us for more information

Generating Captcha