223 Queen Street Charlottetown, Prince Edward Island C1A 4B7

9,000 sqft
Ventilation System

$18 / ft2

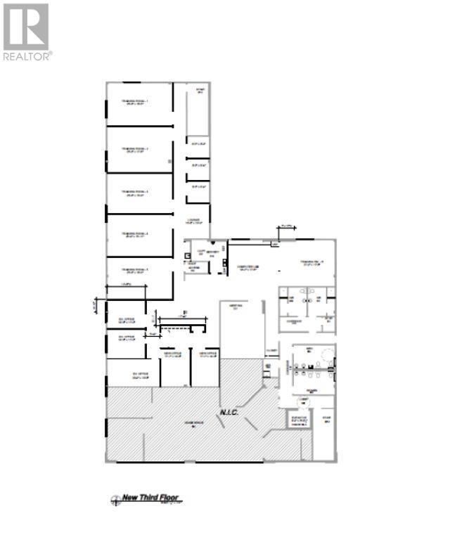
Discover an exceptional leasing opportunity in the heart of downtown Charlottetown located at 223 Queen Street. This state-of-the-art, "Class A" building offers up to 10,000 square feet of premium office space on the 3rd floor level, available for a minimum 5 year-term under a Triple Net (NNN) lease. This building has advanced infrastructure including full backup power generation and a geothermal heating and cooling system, ensuring energy efficiency and uninterrupted operations 24/7. The space features large windows that flood the area with natural light, a boardroom, classroom and office spaces and several open-concept collaboration spaces designed to foster productivity. 223 Queen has private washrooms to enhance staff comfort. A perfect building for access to greenspace providing a perfect setting for breaks and team gatherings. High-security measures, including digital key access throughout the premises, ensure a safe working environment. Ample street front parking & a parkade located directly across the street offers some parking for employees and clients. This prime location at 223 Queen Street positions your business in a vibrant area with easy access to local amenities and services. The combination of cutting-edge facilities and a central location makes this space an ideal choice for businesses seeking a prestigious address in downtown Charlottetown. (id:30476)

Business

Business Type Other
Business Sub Type Offices

Property Details

MLS® Number 202518714
Property Type Office
Community Name Charlottetown
Community Features High Traffic Area
Features Paved Driveway

Building

Amenities Air Conditioning
Construction Material Steel Frame
Cooling Type Ventilation System
Fire Protection Smoke Detectors, Sprinkler System-fire
Flooring Type Concrete
Stories Total 3
Size Interior 9,000 Sqft
Total Finished Area 9000 Sqft
Utility Water Municipal Water

Parking

Other

Land

Acreage No
Size Total Text Under 1/2 Acre
Zoning Description Commercial

https://www.realtor.ca/real-estate/28653226/223-queen-street-charlottetown-charlottetown

Contact Us

Contact us for more information

Generating Captcha